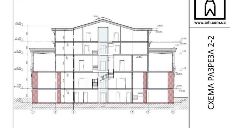
Руины известно в Одессе так называемого “Массонского дома” наконец-то заинтересовали частников, которые купили остатки здания. 2 июля на заседании Консульационного Совета по охране культурного наследия будут рассматривать проект перестройки здания отделения Императорского Российского технического товарищества 1892 года постройки. Проект опубликовал одесский общественник Сергей Сарафанюк. Он предложил обсудить перед заседанием проектное предложение.
На визуализации видно, что пропадет часть декора исторического здания, а самое главное – оно станет 5-этажным. Судя по разрезу – это будет административное здание, вроде бизнес-центра. Также стоит отметить, что за остатками здания все еще закреплен статус памятника архитектуры.
13:00
30.01.26
Мошенник из СИЗО продавал несуществующие дрова жителям Измаильского района
В Измаильском районе правоохранители разоблачили мужчину, который, находясь под стражей, обманул семерых граждан, продав им через интернет несуществующие дрова.
11:00
30.01.26
Алкоголь за рулем: в Одесской области завершили расследование резонансного ДТП
10:00
30.01.26
В Одессе планируют установить мобильные укрытия на побережье за счет доноров
09:30
30.01.26
За сутки в Одесской области произошло 23 чрезвычайных события: два пожара с погибшими
09:00
30.01.26
В Одесской области 30 января ожидается резкое ухудшение погоды и осложнение движения
16:00
29.01.26
Чиновника райадминистрации Одессы задержали на взятке
15:00
29.01.26
В Одессе из-за ремонтных работ на энергообъектах возможны перебои с водой
14:00
29.01.26
В Одесской области главврача подозревают в незаконном обогащении на COVID-доплатах
13:00
29.01.26
Подозреваемый в убийстве одессит выпал из окна пятого этажа при задержании
12:30
29.01.26
Где обходим и объезжаем: адреса работ на улицах Одессы
11:00
29.01.26
За неделю инспекторы зафиксировали шесть фактов незаконного сброса отходов в Одессе
12:00
30.01.26
Часть улиц в центре Одессы осталась без водоснабжения
Новости Одессы и региона
10:00
29.01.26
Удар беспилотников по Одессе вызвал масштабное возгорание на предприятии
В ночь на 29 января российские войска атаковали Одессу ударными беспилотниками.
Новости Одессы и региона
09:00
29.01.26
Гололед осложняет восстановление электросетей в Одесской области
В Одесской области продолжаются аварийно-восстановительные работы на объектах электроснабжения, однако их выполнение существенно осложняют неблагоприятные погодные условия.
Новости Одессы и региона
14:00
28.01.26
Авария с микроавтобусами в Одесской области: есть пострадавшие
Утром 28 января возле села Криничное Болградского района Одесской области произошло дорожно-транспортное происшествие с участием двух микроавтобусов.






